Терра Проект

БЮРО ПЕРЕПЛАНИРОВОК И ИНЖЕНЕРНОГО ПРОЕКТИРОВАНИЯ 

Согласование и узаконивание перепланировок квартир и нежилых помещений в Перми


Консультация

Подробная бесплатная консультация до заключения договора по телефону или в мессенджерах

Услуги "под ключ"

Полный комплекс услуг "под ключ"  проектировщика и кадастрового инженера

Свидетельство СРО

Проектное СРО Ассоциация «Объединение проектировщиков «ПроектСити», рег № СРО:П-180-595300778641-2548СРО

Посмотреть СРО (выписка НОПРИЗ)

Цены от 8000 ₽

Доступные цены при гарантии высокого качества услуг и оперативного выполнения работ


Согласование проекта перепланировки

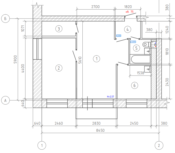
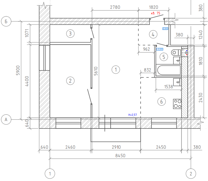
Проект перепланировки и (или) переустройства готовится на основании технического паспорта или выписки из ЕГРН в течение 2-3 дней.

Далее согласовываем проект в администрации и получаем решение о согласовании.

Технический план и регистрация в ЕГРН

Кадастровый инженер готовит технический план. В администрации оформляем акт приемочной комиссии.

При заказе услуги согласования или узаконивания перепланировки "под ключ" у нас в итоге вы получаете выписку из ЕГРН с новыми характеристиками помещения.


Нас хвалят на Авито...


Александр Галанов

ОГРНИП 325595800104480 ИНН 595300778641 СРО Ассоциация «Объединение проектировщиков «ПроектСити», регистрационный номер члена СРО:П-180-595300778641-2548СРО

Тел.: +7 909 728-36-55 
E-mail: 
terra-projekt@yandex.ru